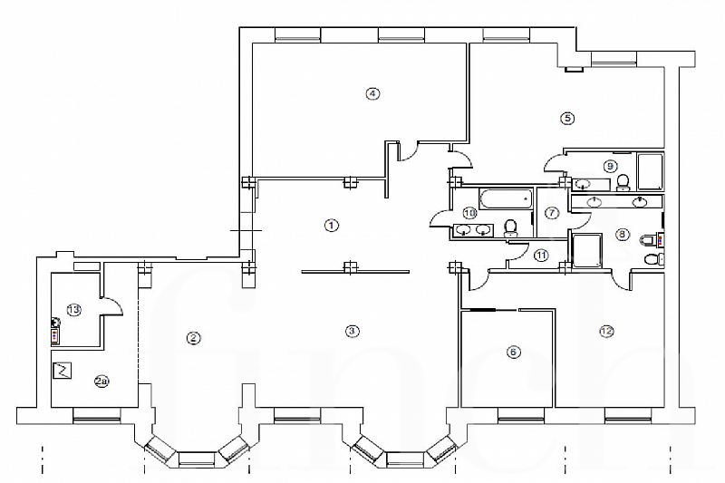
Видовая квартира свободной планировки с большим потенциалом. . Из окон квартиры открывается захватывающий вид на Москву-реку, Белый дом и площадь Европы, Москва-Сити. Преимущество предложения - просторная двухсторонняя квартира с потолками высотой 3,5 метров в историческом доме. Имеется дизайн-проект. Функциональная планировка позволяет разместить 3-4 спальни, просторную гостиную с кухней, гардеробную, три санузла, постирочную, и даже сауна.
оплот конструктивного эгоизма
- Площадь, м2216 м2
- Спален:3 - 4 спален
- Ванных комнат:2 - 3 ванных комнат
- Этаж: 5 этаж
-
Рядом театры, рестораны -
Для активных -
Для общительных -
Шикарный вид
Цена:
170 000 000
Другие предложения по этой цене
Связаться с менеджером
finch рекомендует
-
Леонтьевский пер. дом 8
- Спален: 2
- Ванных комнат: 3
- Площадь, м2 200.00
-
Большая Полянка ул., дом 9
- Спален: 2
- Ванных комнат: 3
- Площадь, м2 156.20
-
Малый Новопесковский пер., дом 8
- Спален: 2
- Ванных комнат: 2
- Площадь, м2 207.00
-
Пресненская наб., дом 8
- Спален: 2
- Ванных комнат: 3
- Площадь, м2 184.70
-
Садовая-Кудринская улица, д.28-30
- Спален: 2
- Ванных комнат: 2
- Площадь, м2 91.00
Имеется огороженный двор с шлагбаумом.
Вверх