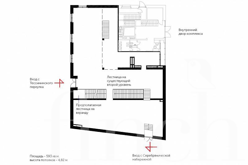
Предлагается к продаже (также возможна аренда) галерея в современном жилом комплексе Артхаус. Галерейное пространство расположено на 1-м и подвальном этаже. Площадь подвального помещения -
691,3 кв.м. Высота потолков - 4,22 метра. Площадь первого этажа с отдельным входом - 593 кв.м. Высота потолков - 4,82 метра. Галерея идеально подходит под ресторан и кинотеатр, или его можно использовать как клубное пространство с функцией коворкинга.
