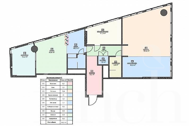
Уникальная IQ-архитектура , панорамное остекление, шикарные виды на город с высоты птичьего полета, шумоизолирующие технологии остекления фасадов, авторские входные группы, подземный паркинг.
IQ-квартал является единственной полностью жилой башней в Сити.
