Квартира расположена в одном из лучших и, пожалуй, самом статусном доме района. Здесь все под рукой. И прогулочные зоны, и парки, и рестораны. Прекрасная транспортная доступность.
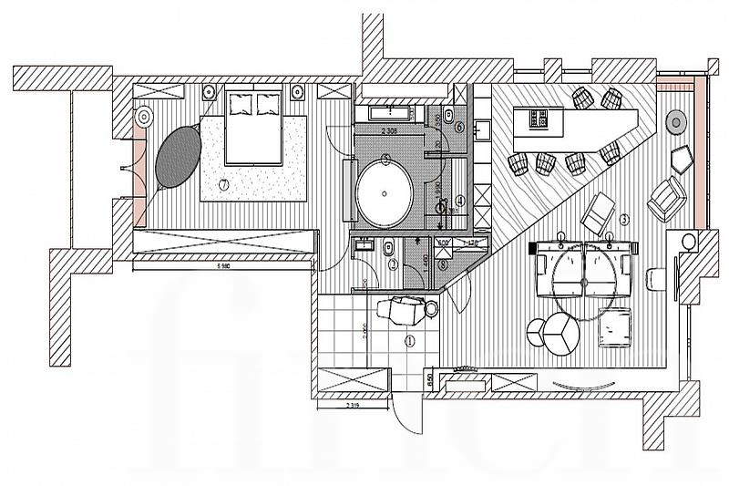
Квартира с одной спальней предназначена для людей, ценящих отдых, но любящих работать. Удобное рабочее пространство напротив окна. Удивительно комфортное кресло для отдыха и чтения рядом с био-камином. Предусмотрено все. Кухня, в которой есть возможность готовить и гриль, и на паре.
